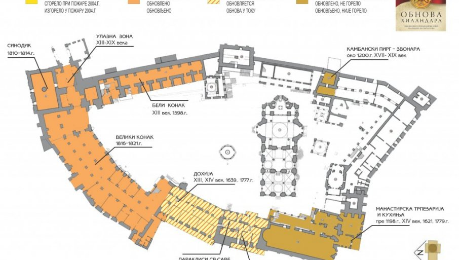
Rane koje je Svetoj srpskoj carskoj lavri Hilandaru naneo požar pre 20 godina, gotovo su zaceljene: neimari su pri kraju obnove 5.897 metara kvadratnih uništenih ili teško oštećenih konaka, što je oko 55 odsto korisne površine manastira.
Suve brojke ipak ne mogu da ilustruju bol koji u srpskom narodu izazvala vest koja je stigla sa Svete Gore iz noći između 3. i 4. marta 2004, da vatra guta ogroman deo zadužbine Stefana Nemanje – Svetog Simeona, i njegovih sinova Svetog Save i Svetog kralja Stefana Prvovenčanog, očeva naše nacije.
Danas, osvrnuvši se na dve decenije vidanja materijalnih rana manastira može se reći da je nenadoknadivi materijalni gubitak doneo neočekivanu dobrobit, ponovno ujedinjenje Srba oko nemanjićkog Hilandara.

-Hvala Bogu, mogu da potvrdim da ćemo da kraja ove godine završiti sve spoljne radove i na poslednjim delovima kompleksa stradalim u požaru. Zapravo, u Dohijar već unosimo nameštaj, a u Igumenariji će nam za sledeću godinu ostati samo deo unutrašnjih radova. Uskoro očekujemo i grčku ekipu koja će u saradnji sa našom učvrstiti i bedemski zid koji povezuje ove objekte – kaže Milivoj Ranđić, direktor Zadužbine Svetog manastira Hilandara.
Današnji poklonici koji sada dolaze u Svetu srpsku carsku lavru prvi put ne mogu ni da zamisle sliku zgarišta posle požara izazvanog varnicema koje su prošle kroz pukotinu u dimnjaku konaka Igumenarije i izazvale tinjanje suvih greda drvene konstrukciju drevne građevine.
Žar se pretvorio u plamen u najvišem i najteže dostupnom delu konaka i monasi nisu uspevali da ga ugase. Jak vetar je oganj proširio na ceo severni deo kompleksa. Sagorele drvene konstrukcija viših spratova su padale pod težinom krovova od kamenih ploča i rušile niže spratove. Požar se zaustavio tek na praznom prostoru prostoru između Belog konaka i Pirga Svetog Save. Posle prvog zaprepašćenja i užasa zbog katastrofe, Srbi iz svih krajeva sveta su se 2006. godine trgli i ujedinili u obnovi Hilandara, obnavljajući sebe.

-Hilandar je najstarija srpska ustanova koja živi u kontinuitetu i zato se sa toliko pažnje i nestrpljenja pratila njegova obnova. Oko Hilandara Srbi imaju jedinstvenu misao, on je naša istorijska vododelnica, na njega su svi ponosni i svi žele da u njemu sve bude u savršenom poretku. Jer, iako Hilandar kao ni Sveta Gora ne izgledaju i ne žive kao u 12. veku, to je ipak i danas „druga planeta“, izdvojeni bogocentrični svet. Ljubav prema Hilandaru svedoči da Srbi kao narod imaju taj bogocentrični svet kao ideal, čak i kada ne umeju to da artikulišu. Za Srbe Hilandar nije običan simbol, mi se po njemu prepoznajemo i samoodređujemo. Njegovo bratstvo možemo da uporedimo sa porodicom koja postoji 825 godina i bavi se očuvanjem Svete srpske carske lavre po tipiku Svetog Save – kaže Ranđić.
Da se kraj obnove nazire potvrdio je i hilandarski iguman Metodije u Solunu krajem januara prilikom osvećenja i svečanog otvaranja novih prostorija za Srpsku dopunsku školu „Sveti Sava“.

-Cele ove godine ćemo raditi i sigurno i neko vreme naredne. Moramo da uzmemo u obzir da smo imali zastoje i u vreme korone i u vreme ekonomske krize, tako da nije baš sve išlo onako kako je planirano, ali slava Bogu, posle 20 godina je kraj vrlo blizu. Država Srbija je najveći dobrotvor i ktitor obnove manastira, posebno od kada je usvojen Zakon o manastiru Hilandaru u Skupštini Srbije, ali i pre toga, tako da je i to prilika da se posle 825 godina otkad je manastir osnovan, još jednom i na taj način i praktično pokaže da je manastir Hilandar, iako van teritorije Srbije, srpska svetinja i najvažnije srpsko nasleđe – rekao je iguman Metodije.

O Hilandaru je mnogo rečeno i pisano, o njegovom duhovnom i kulturnom značaju, ali se najmanje zna o njegovoj verovatno najvećoj ulozi u najtežim vremenima. Naime, Srpska carska lavra na Svetoj Gori je tokom osmanske vlasti bio jedini deo Srbije na kome je eksteritorijalno očuvana srpska državnost. Na njemu se pravno temelji obnova Srbije u 19. veku. Malo je naučnika koji su u drugoj polovini 20. veka imali snage i hrabrosti da se bave Hilandarom, a upravo u to vreme zablistala je akademik dr Mirjana Živojinović, koja je svojim istraživanjima i prevodima pronela slavu Nemanjine zadužbine i otkrila je celom svetu.
-Istorija Hilandara pokazuje da su njegovi monasi odigrali veliku ulogu u životu Srpske crkve, najpre u njenom organizovanju, a zatim rukovođenju. Najsposobniji hilandarci su se vraćali u maticu da bi, obično po želji srpskog kralja, zauzeli rukovodeće položaje – od episkopa do arhiepiskopa. Hilandar je postao jedan od najznačajnijih kulturnih i verskih centara srednjovekovne Srbije. Veze srpskog svetogorskog manastira sa matičnom zemljom su ostale trajne i stoga je istorija Hilandara deo prošlosti srpskog naroda – zapisala je akademik Mirjana Živojinović u neprevaziđenoj monografiji „Istorija Hilandara: od osnivanja manastira 1198. do 1335. godine“ o prvim vekovima svetinje.

Veoma simbolično, pred okončanje obnove Svete srpske carske lavre, po odluci Svetog arhijerejskog sinoda Ordenom Svetog Save trećeg stepena odlikovana je akademik Mirjana Živojinović, koja je život doslovno posvetila proučavanju i prevođenju građe o Hilandaru.
Na sastanku Komisije za Hilandar u Ministarstvu kulture održanom 20. februara usvojen je izveštaj o radovima i aktivnostima u okviru Programa obnove u 2023. i Program rada i finansijskog plana za 2024. godinu. Zamenik predsednika Komisije, ministar Nikola Selaković, koji je predsedavao, konstatovao je da će zaključno sa 2024. biti završeni građevinsko-zanatski radovi na objektima stradalim u požaru.

Uporedo sa njihovom obnovom radi se na unapređenju i izgradnji infrastrukture manastira: putne, vodovodne i kanalizacione infrastrukture, protivpožarne zaštite, grejanja, kao i na izgradnji solarnog polja sa trafostanicama. Nastavljena je i zaštita i restauracija pokretnog nasleđa Hilandara: živopisa, predmeta likovne i primenjene umetnosti, starih i retkih štampanih knjiga, arhivske i bibliotečke građe, kao i predmeta etnografske zbirke.
POVEZANE TEME:
Izvor: Novosti
Foto: Tanjug



